|
■物件No.shin_1688 フジパレス阪急武庫之荘駅西5番館■
|
|
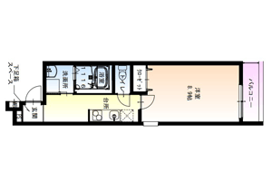
種別/間取
|
アパート/1K |
備考/コメント
|
|
沿 線
|
阪急線 武庫之荘駅 徒歩13分 |
人気のハウスメーカー施工、オール角部屋設計、宅配ボックス完備、インターネット無料。 |
|
住 所
|
尼崎市南武庫之荘6 |
|
面 積
|
27.6〜30.6m2
|
|
築 年 数
|
2026年6月 木造 |
家 賃
|
|
保 証/敷 金
|
0円 |
|
|
礼 金/敷 引
|
7万円 |
|
共 益 費
|
4600円 |
|
設 備
|
2口コンロ,3点給湯,BS,CATV,IHクッキングヒーター,TVインターホン,エアコン,クローゼット,システムキッチン,シャワー,シャワー付洗面台,トイレ有,ネット使用料不要,バス・トイレ別,バス有,フローリング,温水洗浄便座,給湯,室内洗濯機置場,洗面化粧台,洗面所にドア,洗面所独立,洗面台,脱衣所,浴室乾燥,宅配BOX,敷地内ゴミ置き場 |
| TEL06-4868-8680 |
TEL06-4869-3993 |
| TEL06-6470-3993 |
TEL06-6422-3913 |
| TEL06-4869-3994 |
|
|
|