|
■物件No.shin_826 フジパレス立花5番館■
|
|
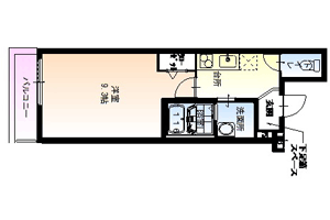
種別/間取
|
ハイツ/1K |
備考/コメント
|
|
沿 線
|
JR神線立花駅 徒歩9分 |
設備充実のオートロック付きハイツです。全部屋角部屋設計です。 |
|
住 所
|
尼崎市南七松町1 |
|
面 積
|
28.38〜30.24m2
|
|
築 年 数
|
平成28年11月 構造/木造 |
家 賃
|
|
保 証/敷 金
|
0円 |
55,500円〜59,500円
|
|
礼 金/敷 引
|
10万円 |
|
共 益 費
|
3700円 |
|
設 備
|
専用バス、専用トイレ、バス・トイレ別、シャワー、IHコンロ、コンロ二口、システムキッチン、給湯、シャワー付洗面化粧台、エアコン、室内洗濯機置場、CATV、BSアンテナ、オートロック、バルコニー、フローリング、駐輪場あり、光ファイバー、角部屋、TVドアホン、温水洗浄便座、浴室乾燥機、洗面所独立、クローゼット
|
| TEL06-4868-8680 |
TEL06-4869-3993 |
| TEL06-6470-3993 |
TEL06-6422-3913 |
| TEL06-4869-3994 |
|
|
|